Apartamento en venta en Plaza Plaza de la Revolución, La Habana

Guardar ficha del inmueble en tu PC
Calidad del anuncio
4.72 / 5
Este anuncio fue reactivado por Celia Garcia hace más de 1 año por lo que no podemos asegurar que aún este vigente.

Características del inmueble

Tipo de inmueble:
Apartamento
Estilo constructivo:
Años 50
Precio de venta:
60 000 CUC
Dormitorios:
2
Baños:
1
Cocinas:
1
Superficie:
70 mts2
Año de construcción:
1950
Estilo constructivo:
Años 50
Tipo de construcción:
Mamposteria y placa
Estado inmueble:
Bueno
Otras particularidades:
  1. ΞBalcón
  2. ΞGas de la calle
  3. ΞPatio
  4. ΞTeléfono incluido
  5. ΞTerraza

Estadisticas

1 Favoritos
2503 Visitas
0 Alertas de precio

Descripción del inmueble

Ref: 728 587
Publicado hace:
4 años y 11 meses

Se vende piso en 60000 USD.
Está situado en una de las zonas mas seguras y bellas del Vedado proximo a las calles de Linea y Paseo, rodeado de hoteles como el Cohíba y el Riviera, varios supermercados como Galerías Paseo, bancos, teatros y excelente comunicacion. Está en el segundo piso de un edificio de 3 plantas construido en el el año 1950 con solo dos pisos por planta, con mucha privacidad y tranquilidad.El edificio se encuentra alejado de las zonas de inundaciones del mar. Las paredes son de ladrillo, techo de hormigon armado, piso de mosaicos y carpinteria de madera.
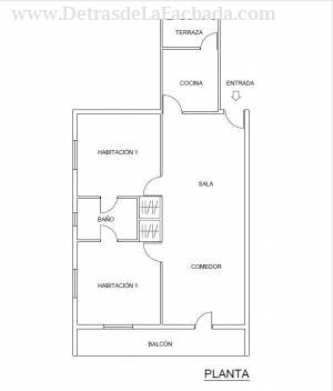
Se compone de sala-comedor que termina en un amplio balcón a la calle, cocina con patio de servicio techado y acristalado, dos dormitorios amplios con closets y baño intercalado, orientacion norte. Superficie util ocupada total de 70metros cuadrados.
Solo limita saliendo por la derecha con un apartamento en la misma planta, no tiene colindancias por el resto de los lados con ningun inmueble de la propia edificacion. Hace esquina desde el frente hasta atras del edificio. Muy ventilado y luminoso.
Servicios: Gas de la calle, telefono fijo, agua y luz siempre con tanque de almacenamiento y presurizador. Instalacion de 110v y 220v. Aire acondicionado.
Escucho proposiciones. Por favor no tratamos con intermediarios.N aceptamos pagos en MN ni CUC

Datos de contacto

Nombre y apellidos:
Celia Garcia
Teléfono:
+34650802243

Localización del inmueble

Dirección:
Vedado Plaza
Localidad:
Plaza
Municipio:
Plaza de la Revolución
Provincia:
La Habana
CU - Cuba
Ubicación del inmueble:
Casco urbano
Cerrar

Recibe en tu email ventas de casas en Plaza de la Revolución

Sé el primero en ver las nuevas casas con las características que tu buscas, crea un aviso de coincidencia y recibirás en tu email las nuevas ofertas

La Habana
Plaza de la Revolución
Selecciona SI las siguientes casillas y NO pierdas la oportunidad de recibir propuestas directamente de los propietarios de casas similares a la que buscas
casitas Validando tus datos....
Cerrar

Si deseas conocer más información

Si estas interesado en este inmueble tienes la oportunidad de solicitar más informacion directamente al propietario

Nombre y apellidos
Su email
Le hemos enviado su petición al propietario, debe contestarle en un plazo de 10 días, que es el período de validez de esta solicitud.
Gracias por confiar en nosotros.
casitas

Fotos del inmueble

0 / 10
Salon vista al balcon
Salon vista al balcon
1 / 10
Vista ventana patio
Vista ventana patio
2 / 10
Salon comedor
Salon comedor
3 / 10
Salon Comedor
Salon Comedor
4 / 10
Habitacion 1
Habitacion 1
5 / 10
Habitacion 2
Habitacion 2
6 / 10
Habitacion 2
Habitacion 2
7 / 10
Comedor
Comedor
8 / 10
Calle
Calle
9 / 10
Plano
Plano

10 Fotos del inmueble

Geolocalización

COVID 19 - Recursos para ayudarte a ti y a tu comunidad a mantenerse informados y conectados.