Casa en venta en Centro Ciudad Sur, Holguín

Guardar ficha del inmueble en tu PC
Calidad del anuncio
5.00 / 5
Este anuncio fue publicado por Ulises Cuenca Santos hace más de 1 año por lo que no podemos asegurar que aún este vigente.

Características del inmueble

Tipo de inmueble:
Casa
Estilo constructivo:
Moderno
Precio de venta:
150 000 CUC
Dormitorios:
5
Baños:
5
Cocinas:
1
Superficie:
240 mts2
Año de construcción:
2012
Estilo constructivo:
Moderno
Tipo de construcción:
Mamposteria y placa
Estado inmueble:
Bueno
Otras particularidades:
  1. ΞAzotea
  2. ΞAzotea libre
  3. ΞCisterna
  4. ΞHall
  5. ΞPatio
  6. ΞPuerta a la calle
  7. ΞTeléfono incluido
  8. ΞTerraza

Estadisticas

1 Favoritos
5377 Visitas
1 Alertas de precio
1 personas estan esperando que este inmueble baje de precio.

Descripción del inmueble

Ref: 431 341
Publicado hace:
5 años y 10 meses

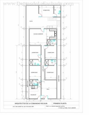
Casa grande nueva con placa libre y posibilidad para garage. Con cimentación para construir 2 plantas más encima de ella. Una superficie total de 240.50 metros cuadrados. Patio y pasillos pavimentados.
Está compuesta por sala, pasillo interior, cocina-comedor climatizado con split de dos toneladas, 5 habitaciones, patio y terraza.
Las 5 habitaciones tienen puertas con llavines, baño, y con un split de una tonelada cada una. También en cada habitación un ventilador, refrigerador y un televisor.
Una de las habitaciones cuenta con entrada independiente desde la calle con un recibidor y pantry.
Otra habitación está ubicada en el patio independiente de la casa.
La casa cuenta con cisterna grande, turbina y tanque elevado. Con entrada de agua de la calle las 24 horas.
Desde el patio hay una escalera que da paso a la terraza grande, toda techada, con un bar, con frio exhibidor de bebidas, baño y dos mesetas.
Pasillos laterales y drenajes a ambos lados.
La casa consta de ventanas hacia ambos lados.
Toda la casa se encuentra enrejada.
Tiene par telefónico disponible, incluyendo servicio internet.

Datos de contacto

Nombre y apellidos:
Ulises Cuenca Santos
Teléfono:
24426485
Horario de contacto:
24 hora

Localización del inmueble

Dirección:
José Antonio Cardet 249/ Martí y Luz Caballero
Localidad:
Centro Ciudad Sur
Municipio:
Holguín
Provincia:
Holguín
CU - Cuba
Ubicación del inmueble:
Casco urbano, Centro
Cerrar

Recibe en tu email ventas de casas en Holguín

Sé el primero en ver las nuevas casas con las características que tu buscas, crea un aviso de coincidencia y recibirás en tu email las nuevas ofertas

Holguín
Holguín
Selecciona SI las siguientes casillas y NO pierdas la oportunidad de recibir propuestas directamente de los propietarios de casas similares a la que buscas
casitas Validando tus datos....
Cerrar

Si deseas conocer más información

Si estas interesado en este inmueble tienes la oportunidad de solicitar más informacion directamente al propietario

Nombre y apellidos
Su email
Le hemos enviado su petición al propietario, debe contestarle en un plazo de 10 días, que es el período de validez de esta solicitud.
Gracias por confiar en nosotros.
casitas

Fotos del inmueble

0 / 9
FormatFactoryP. BAJA A
FormatFactoryP. BAJA A
1 / 9
FormatFactoryP. ALTA B
FormatFactoryP. ALTA B
2 / 9
FormatFactoryP.BAJA B
FormatFactoryP.BAJA B
3 / 9
Salón de la Terraza
Salón de la Terraza
4 / 9
Fachada de la casa
Fachada de la casa
5 / 9
Bar de la Terraza
Bar de la Terraza
6 / 9
Sala de la casa
Sala de la casa
7 / 9
Plano
Plano
8 / 9
José Antonio Cardet 249/ Martí y Luz Caballero

9 Fotos del inmueble

Geolocalización

COVID 19 - Recursos para ayudarte a ti y a tu comunidad a mantenerse informados y conectados.