Casa en venta en Centro Histórico Nueva Gerona, Isla de la Juventud

Guardar ficha del inmueble en tu PC
Calidad del anuncio
4.72 / 5
Este anuncio fue reactivado por Ileana Hernandez Peña hace más de 1 año por lo que no podemos asegurar que aún este vigente.

Características del inmueble

Tipo de inmueble:
Casa
Estilo constructivo:
Moderno
Precio de venta:
12 000 CUC
Dormitorios:
3
Baños:
2
Cocinas:
1
Superficie:
114 mts2
Año de construcción:
2000
Estilo constructivo:
Moderno
Tipo de construcción:
Mamposteria y placa
Estado inmueble:
Bueno
Otras particularidades:
  1. ΞAzotea libre
  2. ΞCisterna
  3. ΞJardín
  4. ΞPatio de tierra
  5. ΞPiscina
  6. ΞPortal
  7. ΞPuerta a la calle
  8. ΞTeléfono incluido
  9. ΞTerraza

Estadisticas

31 Favoritos
10868 Visitas
6 Alertas de precio
6 personas estan esperando que este inmueble baje de precio.

Descripción del inmueble

Ref: 708 825
Publicado hace:
10 años y 7 meses

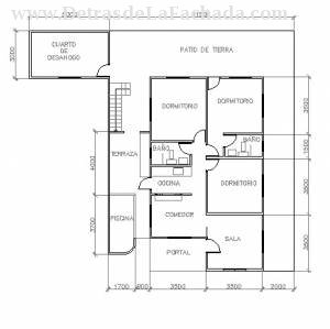
Casa independiente en el centro de Nueva Gerona, Isla de la Juventud, construida en el año 2000, en planta baja, con paredes de mamposteria, techo de placa y carpinteria de madera protegidas con rejas metalicas en puertas y ventanas.
Cuenta con: portal, sala, comedor, cocina, 2 baños (1.50x2.50m c/u), 3 habitaciones (3.50x4.00m), terraza con lavaderos (2.50x5.00m) y una pequeña piscina familiar. Además, dentro de la propiedad existe un cuarto de desahogo de mamposteria y cubierta ligera con entrada independiente (3.00x5.00m). Tiene espacio con posibilidades para garaje.

La casa se encuentra en un lugar tranquilo y centrico (cerca del boulevard, hospital y policlinicos), tiene la placa libre con acceso mediante escalera exterior de hormigon, instalacion electrica de 110 y 220v, cisterna propia, tanque elevado y patio de tierra (3.00x 10.00m) con arboles frutales.

La superficie contruida es de 114.86m2 y la superficie de la parcela es de 195.00m2

Escuchamos propuestas

Datos de contacto

Nombre y apellidos:
Rodolfo
Teléfono:
(53)46323068
Horario de contacto:
todo el día

Localización del inmueble

Dirección:
Calle 22 # 4705 e/ 47 y 49
Localidad:
Centro Histórico Nueva Gerona
Municipio:
Isla de la Juventud
Provincia:
Isla de la Juventud
CU - Cuba
Ubicación del inmueble:
Inmediaciones casco urbano
Cerrar

Recibe en tu email ventas de casas en Isla de la Juventud

Sé el primero en ver las nuevas casas con las características que tu buscas, crea un aviso de coincidencia y recibirás en tu email las nuevas ofertas

Isla de la Juventud
Isla de la Juventud
Selecciona SI las siguientes casillas y NO pierdas la oportunidad de recibir propuestas directamente de los propietarios de casas similares a la que buscas
casitas Validando tus datos....
Cerrar

Si deseas conocer más información

Si estas interesado en este inmueble tienes la oportunidad de solicitar más informacion directamente al propietario

Nombre y apellidos
Su email
Le hemos enviado su petición al propietario, debe contestarle en un plazo de 10 días, que es el período de validez de esta solicitud.
Gracias por confiar en nosotros.
casitas

Fotos del inmueble

0 / 2
Fachada del inmueble
Fachada del inmueble
1 / 2
Plano en planta
Plano en planta

2 Fotos del inmueble

Geolocalización

COVID 19 - Recursos para ayudarte a ti y a tu comunidad a mantenerse informados y conectados.