Home For sale in Armada Cerro, Havana

Save property file on your PC
Ad Quality
4.72 / 5

Listing features

Type of property:
Home
Building style:
Modern
Sale price:
65 000 CUC
Rooms:
3
Bathrooms:
2
Kitchens:
2
Surface:
378 mts2
Year of construction:
1957
Building style:
Modern
Construction type:
Masonry and plate
Home conditions:
Very well
Other peculiarities:
  1. ΞFree roof
  2. ΞFront door
  3. ΞGarage
  4. ΞGarden
  5. ΞHall
  6. ΞPorch
  7. ΞTelephone included
  8. ΞTerrace
  9. ΞUnpaved yard
  10. ΞWater tank cistern
  11. ΞYard

Property description

Ref: 191
Published:
8 year and 7 months

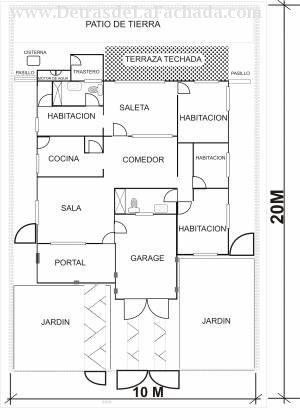
Detached house in the sports casino, one storey, large garden, portal, large enclosed garage, independent living and dining room, closed interior terrace, 2 kitchens with closet, 2 bathrooms, 3 bedrooms with closet, hall, outside. Side corridors, one with laundry and grooved fibrocem shingles, exterior polished cement terrace with ribbed fibrocem shingles and dirt yard. Water and electricity always, has cistern, and 2 water tank with hydraulic installation, in total three water reserves. All the windows and exterior doors have grille, the front and the width of the garden is near pirlex, the rest of the house is bordered by high walls. Electricity; 110 and 220v. Balloon gas (2 bullets). I am the owner.
Urban zone

Year of construction: 1957
Walls: brick
Cover: reinforced concrete
Floors: gray granite slabs
Total area: 378.00 square meters
 The casino sports distribution is a residential distribution, and our house is near the commercial center of avenue rancho boyeros and avenue of camagüey (about 7 blocks).

Contact data

Full name:
EIDEL PARADA
Telephone:
58076263
Contact hours:
TODO EL DIA

Location of property

Address:
Calle Zambrana, Reparto Casino Deportivo
Locality:
Armada
Municipality:
Cerro
Province:
Havana
CU - Cuba
Home location:
In town
Cerrar

Receive notice by email new offers of Cerro

Be the first to view new homes with the features you want, make an agreement and will receive notice by email new offers

Havana
Cerro
Selecciona SI las siguientes casillas y NO pierdas la oportunidad de recibir propuestas directamente de los propietarios de casas similares a la que buscas
casitas Validating data...
Cerrar

If you would like more information

If you are interested in this property you have the opportunity to request more information directly to the owner.

Full name
Your email
We have sent your request to the owner, must reply within 10 days, which is the period of validity of this application.
casitas

Property pictures

0 / 3
Calle Zambrana,  Reparto Casino Deportivo
1 / 3
Calle Zambrana,  Reparto Casino Deportivo
2 / 3
Calle Zambrana,  Reparto Casino Deportivo

3 Property pictures

Geolocation

COVID 19 - Resources to help you and your communities stay informed and connected